Castronno
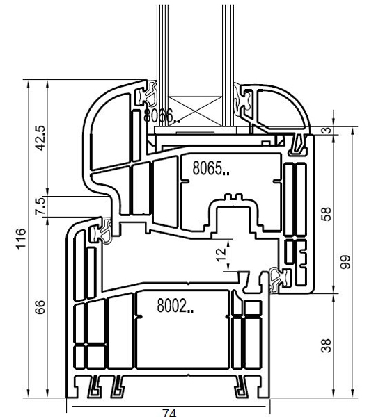
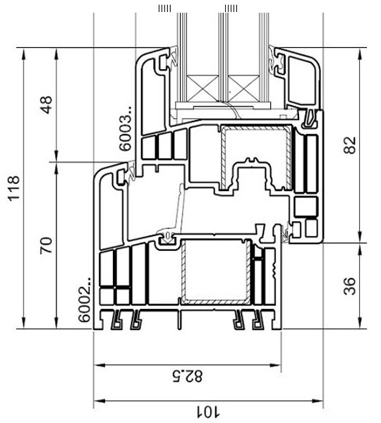
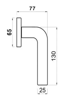
abbiamo ISTALLATO (compreso servizio di rilievo misure e smaltimento delle veccihe finestre in legno) 5 finestre in PVC realizzate con profilo MICHELANGELO da 74.0 mm color BIANCO MASSA, vetrocamera 28 mm con Canalina Calda, maniglia design “YORK” con finitura Argento, CASSONETTI in PVC color BIANCO MASSA e TAPPARELLE in alluminio coibentato colo grigio.
















































































































































































